
Eckdaten
| Objekttyp | Exklusive Stadtwohnung |
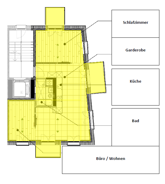
| Zimmer | 3 |
| Stock | 2 |
| Wohnfläche | 67 m2 |
| Ausbaustandard | hoch |
| Besonderes | - eigener Waschturm mit Tumbler in der Wohnung - drei Balkone - Lift / Rollstuhlgängig |
| Baujahr | 2019 |
| Verfügbar | 1. April 2019, evtl. ein paar Tage früher |
| Nettomiete pro Monat | CHF 2'600.- |
| Nebenkosten Akonto pro Monat | CHF 250.- |
Beschreibung
Diese neu erstellte Wohnung im Eigentumsstandard und Minergie Bauweise liegt an hervorragender Lage im Kreis 3 direkt neben dem Idaplatz. Sie ist sehr hell, geräumig und hat drei Balkone. Das Schlafzimmer befindet sich auf der Rückseite des Hauses und ermöglicht ein ruhiges Schlafen selbst bei offenem Fenster.
Beim Ausbau wurden die besten Materialien verbaut. Im Wohn-/Ess-/Eingangsbereich sowie im Bad wurden Feinsteinzeugplatten verlegt, in den beiden Zimmern Kieferparkett geölt. In der Küche wurden neben einer Granitabdeckung Geräte von Miele eingebaut. Es gibt einen Induktionsherd, Geschirrspüler, Backofen und eine Kühl-/Gefrierkombination. Sehr nützlich sind auch die vielen Einbauschränke.
Bei der Raumeinteilung wurde darauf geachtet, dass mit grossen Schiebetüren eine flexible Nutzung einfach möglich ist. Der eigene Waschturm mit Tumbler in der Wohnung gibt Ihnen zusätzliche Freiheit.
Falls Sie Freude am Wohnen mit gehobenem Standard an bester Lage im Kreis 3 haben, ist das die richtige Wohnung für Sie. Wir freuen uns auf Ihre Kontaktaufnahme!







